Unless specified in writing by the Institute, sponsoring organizations assume all facilities costs associated with the event, including setup, breakdown, and cleaning. To place your facilities request, please go to brwn.co/bk-fac. You must forward confirmation of your request to [email protected].
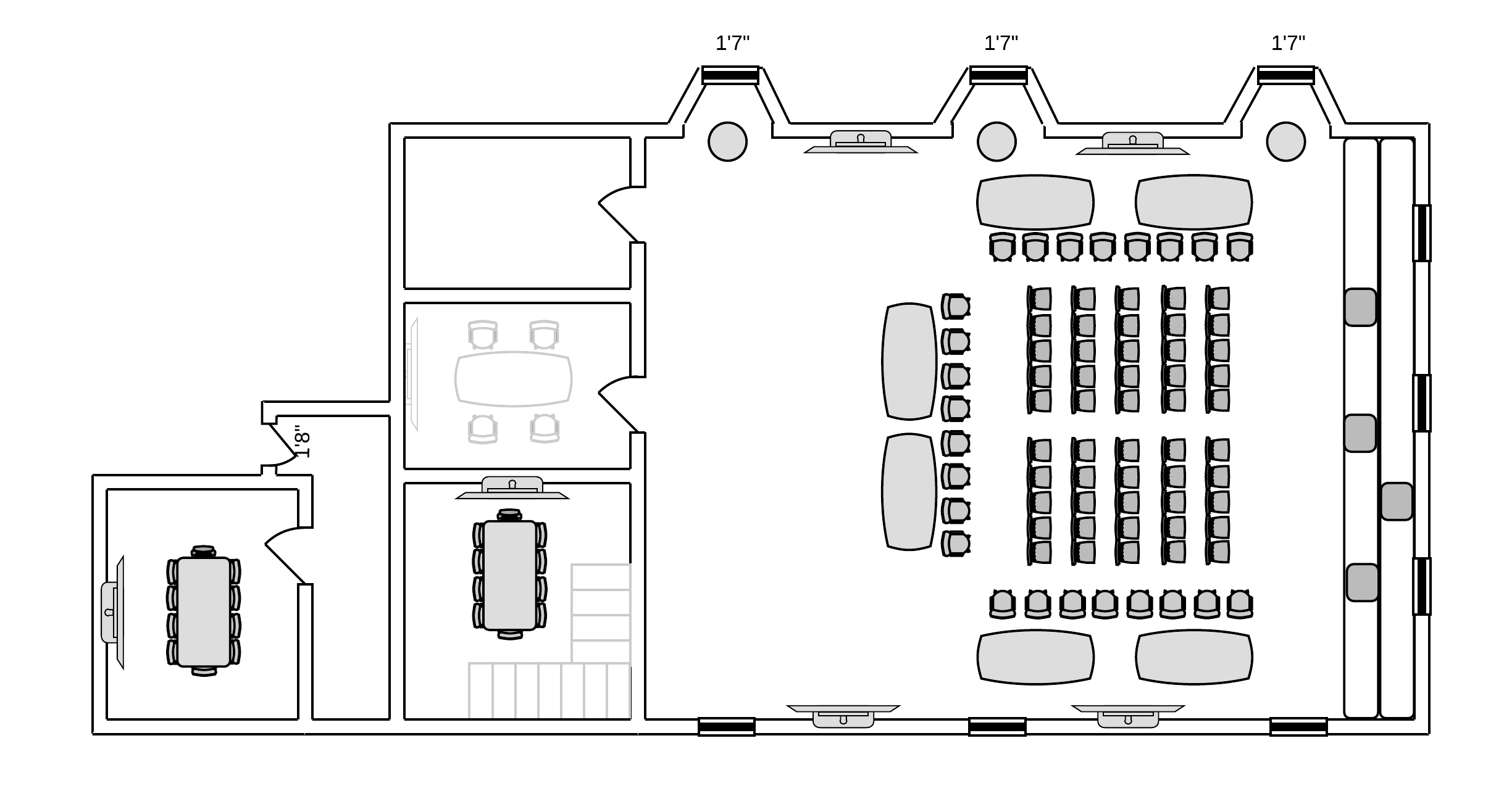
If you need the room to be setup different than the default arrangement, please determine the desired setup, and include it in your facilities request. Samples of room layouts are provided below. These layout drawings should be included in your facilities request to help the setup team.



When requesting facilities, please note that the 24 rolling chairs in the space are not to leave the main space. They can be set to the sides of the room, but they CANNOT be removed. In addition, the six large work tables cannot be removed.
If requesting seating, the only chairs allowed into our space are the black rubber Knoll chairs located the Stabile Center, the first floor lab, and room 202.
If requesting tables for serving food, please request the tables from 202, if available. If 202 is in use, you may request the extra 6' tables located in the kitchen next to the World Room.
If necessary, coat racks can be requested from the third floor, but must be placed in room 202, if available.
The space does not permit other furniture rentals, unless agreed to administrators of the Brown Institute.
If you requested for room setup, please request the room to be reset to the Default Layout following your event. The room must be reset by 8am of the following day.
If your event has more than 24 people and/or has any food or drink, you are REQUIRED to request cleaning services by facilities. Your cleaning services request should read:
"Following our event, could we please request cleaning of our space--including:
Thank you!"